Çö´ëµå¶óÀ̺êÀÇ ÃÖ»óÀÇ ±â¼ú·Â°ú ²÷ÀÓ¾ø´Â µµÀüÀ¸·Î ÃÖ»óÀÇ Á¦Ç°À¸·Î °í°´ ¿©·¯ºÐÀ» ã¾Æ ºË°Ú½À´Ï´Ù. ¼¼°è ÃÖ°í¸¸À» °íÁýÇÏ´Â ¿ì¼öÇÑ ÀüÀåǰ°ú ¶Ù¾î³ ±â¼ú·ÂÀ¸·Î º¸´äÇϰڽÀ´Ï´Ù.

home > Á¦Ç°¼Ò°³ > hdd-3x ¸¶±×³×Æ® drive




| KEY | EXPLANATION |
|---|---|
| RESET | - °ªÀ» ÀúÀåÇÏÁö ¾Ê°í input mode¿¡¼ ºüÁ®³ª¿Ã ¶§ »ç¿ëÇÑ´Ù. |
| ENTER | - Mode °ªÀ» º¯°æÇϰųª ÀúÀåÀ» ÇÒ ¶§ »ç¿ëÇÑ´Ù. - Mode °ªÀ» ÀúÀåÇÒ ¶§´Â Drive°¡ ¿îÀüÁ¤ÁöÀÏ ¶§ °¡´ÉÇÏ´Ù. |
| UP | - mode°ªÀ» º¯°æÇϰųª ¿Å±æ ¶§ »ç¿ëÇÑ´Ù |
| DOWN | - mode°ªÀ» º¯°æÇϰųª ¿Å±æ ¶§ »ç¿ëÇÑ´Ù |
| Key Pad Á¶ÀÛ ¹× data º¯°æÀÔ·Â
Mode ã±â--- up down key¸¦ Á¶ÀÛÇØ, Mode¸¦ º¯°æÇؼ ¿øÇÏ´Â Mode¸¦ ãÀ» ¼ö ÀÖ½À´Ï´Ù dataº¯°æ ¹× data ÀÔ·ÂÇϱâ--- enter key¸¦ 1secÀÌ»ó ±æ°Ô ´©¸£¸é Ä¿¼°¡ Á¡µîµË´Ï´Ù. Ä¿¼°¡ Á¡µîÀÌ µÇ¸éÀº data¸¦ º¯°æÇÒ ¼ö ÀÖ´Â Á¶°ÇÀÌ µË´Ï´Ù. data º¯°æÀº up down key¸¦ Á¶ÀÛÇØ º¯°æÇÏ¸é µË´Ï´Ù. º¯°æµÈ data ÀúÀåÇϱâ--- enter key¸¦ 1secÀÌ»ó ±æ°Ô ´©¸£¸é Ä¿¼ Á¡µîÀÌ ¸ØÃß°í, data´Â ÀúÀå µË´Ï´Ù. º¯°æµÈ data ÀúÀåÇÏÁö ¾Ê°í ºüÁ®³ª¿À±â--- Reset key¸¦ ´©¸£°í ³ª¿À¸é ÀÌÀüÀÇ »óÅ·ΠµË´Ï´Ù, |
| LED | EXPLANATION |
|---|---|
| RUN | - Drive Á¤ÀÚ¿îÀüÀ» Ç¥½ÃÇÑ´Ù. |
| FAULT | - Drive °íÀåÀ» Ç¥½ÃÇÑ´Ù. |
| EXT | - Drive ¿ªÀÚ¿îÀüÀ» Ç¥½ÃÇÑ´Ù. |
| FAULT | - Drive °íÀåÀ» Ç¥½ÃÇÑ´Ù. |
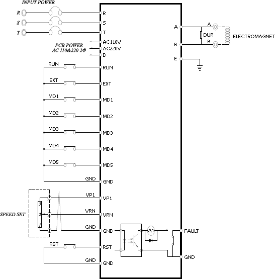
1. Á¦¾î PCB´ÜÀÚ´ë ±â´É ¹× ¼³¸í
| ´ÜÀÚ¸í | ±â´É ¼³¸í | Á¢¼Ó ¹× Ãâ·Â½ÅÈ£ | ±âŸ |
|---|---|---|---|
| P24 | ¿ÜºÎ DC Àü¿ø | DC +24V | |
| N24 | ¿ÜºÎ DC Àü¿ø | DC -24V | |
| VIN | ¿ÜºÎ ÀÔ·Â(0~5V) | ||
| GND | |||
| RST | Reset | ||
| GND | ³»ºÎ ÁöÁ¤°ª Ãâ·Â(Àü·ù,Àü¾Ð) | ||
| MD6 | ´Ù´Ü ÀÔ·Â 6 | ||
| EXT | Àü·ù Ãâ·Â(ºÎÇÏ) | ||
| GND | |||
| MD5 | ´Ù´Ü ÀÔ·Â 5 | ||
| MD4 | ´Ù´Ü ÀÔ·Â 4 | ||
| MD3 | ´Ù´Ü ÀÔ·Â 3 | ||
| MD2 | ´Ù´Ü ÀÔ·Â 2 | ||
| MD1 | ´Ù´Ü ÀÔ·Â 1 | ||
| GND | |||
| POW | Àü¿ø ÀÔ·Â(Drive)½Ã ON | a Á¢Á¡ | |
| ERR | °íÀå ½ÅÈ£ Ãâ·Â | a Á¢Á¡ | |
| COM |
2. Á¦¾î Power ÀÔÃâ·Â ´ÜÀÚ´ë ±â´É ¹× ¼³¸í
| ´ÜÀÚ¸í | ±â ´É |
|---|---|
| 110 | PCB Control Power |
| 0 | |
| R | Drive Power Input AC100V ~ AC440V ÅõÀÔ °¡´É ÇÕ´Ï´Ù. |
| S | |
| T | |
| A1 | Àü¾Ð Ãâ·Â (Magnatic Á¢¼Ó´ÜÀÚ) |
| B1 |
ÁÖ ÀÇ
** ÀԷ°ú Ãâ·ÂÀÇ ´ÜÀÚ°¡ ºÐ¸®°¡ µÇ¾î ÀÖÁö ¾Ê¾ÒÀ¸´Ï °á¼±½Ã ÁÖÀÇ ÇϽʽÿÀ.
**
** ¹æ¿ÆÇÀ̳ª UNIT ÀÇ º»Ã¼¿¡ Àü¾ÐÀÌ À¯±âµÇ´Â °æ¿ì°¡ ÀÖ½À´Ï´Ù. °¨Àü µîÀÇ À§ÇèÀ» ¸·±â À§Çؼ
PANEL Á¦À۽à ¹Ýµå½Ã Á¢Áö¸¦ ½ÃÄÑ ÁֽʽÿÀ.


HDD-MD series ´Â µðÁöÅÐ½Ä ¸®ÇÁÆÃ ¸¶±×³×Æ® Á¦¾î±âÀÇ Ç¥ÁØ »ç¾çÀ̸ç. ÀÌ »ç¾çÀº ÀÛ¾÷ Á¶°Ç¿¡ ÀÇÇØ º¯°æµÉ ¼ö ÀÖ´Ù.
| HDD3X- | 35C | 50C | 70MD | 100MD | 150MD | 200MD | 250MD | ||||||
|---|---|---|---|---|---|---|---|---|---|---|---|---|---|
| OUTPUT (kW) | 6 | 9 | 12 | 15 | 19 | 22 | 26 | 29 | 31 | 38 | 42 | 52 | |
| Rated | 28 | 42 | 55 | 68 | 87 | 100 | 120 | 131 | 141 | 173 | 205 | 237 | |
| Current (A) | |||||||||||||
| Fuse | 1Â÷ | 40 | 65 | 90 | 110 | 130 | 160 | 190 | 210 | 220 | 270 | 320 | 340 |
| (A) | 2Â÷ | 60 | 80 | 100 | 140 | 160 | 200 | 240 | 260 | 280 | 340 | 400 | 460 |
| SCR | IXYS | MCC | MCC | MCC | MCC | MCC | MCC | MCC | MCC | ||||
| SPEC. | 26/16 | 56/16 | 72/16 | 95/16 | 95/16 | 132/16 | 250/16 | 310/16 | |||||
| SANREX | PK | PK | PK | PK | PK | PK | PK | ||||||
| 25-16 | 55-16 | 70-16 | 90-16 | 110-16 | 130-16 | 160-16 | |||||||
| HEAT SINK | 250¡¿60¡¿440 | ||||||||||||
| CT RATIO | |||||||||||||
| (pri/sec) | |||||||||||||
| CT PRIMARY | 1 | 1 | |||||||||||
| TURNS | |||||||||||||
| RO(10W) | 0.5 | ||||||||||||
| R-C SNUBBER | RCS-02 (10W, 68¥Ø, 0.1§Þ, 2000V) | ||||||||||||
| COOLING FAN | 120¡¿120¡¿38 (AC 110V, 220V) | 120¡¿120¡¿38 (AC 110V, 220V) | |||||||||||
| 1EA | 1EA | ||||||||||||
| THERMOSTAT | 85¡É NORMAL CLOSE | ||||||||||||
| TRANSFORMER | CAP. : 35VA, Freq:50/60Hz, Primary vol.:AC 220V,380V,440V,450V control voltage AC110V/220V | ||||||||||||

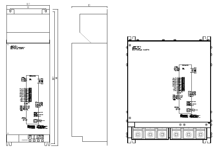
| MODEL NO. | ³»°æ(°¡·Î) W |
¿Ü°æ(°¡·Î) W1 |
¿Ü°æ(¼¼·Î) H |
³»°æ(¼¼·Î) H1 |
³ôÀÌ D |
¹«°Ô |
|---|---|---|---|---|---|---|
| HDD3X - 35MD ~ 70MD | 162 | 180 | 440 | 430 | 210 | 10kg |
| HDD3X - 100MD | 162 | 180 | 565 | 550 | 210 | 11kg |
| HDD3X - 180MD ~ 300MD | 307 | 340 | 440 | 425 | 310 | 27kg |
| NO | ±â´ÉÄÚµå | ±â´É ¼³¸í | ±â´É ¸íĪ | ¼³Á¤°ª | ÂüÁ¶ | ||
|---|---|---|---|---|---|---|---|
| Ç¥½Ã | ¹üÀ§ | ÃâÇϰª | ¼³Á¤°ª | Page | |||
| 1 | Ac | Drive soft start ¸¶±×³×Æ® Ãâ·ÂÀü¾ÐÀÇ »ó½Â½Ã°£ÀÔ·Â | °¡¼Ó½Ã°£ | 0.1 - 3 | 0.1 | ||
| 2 | dc | Drive soft stop ¸¶±×³×Æ® Ãâ·ÂÀü¾ÐÀÇ Çϰ½Ã°£ÀÔ·Â | °¨¼Ó½Ã°£ | 0.1 - 3 | 0.1 | ||
| 3 | EH | Å»ÀÚ ¿îÀü°ª | Å»ÀÚ Ãâ·Â°ª ÀÔ·Â | 0.1 - 100% | 41 | ||
| 4 | 1n | mode-1¹ø ¿îÀü°ª ÀÔ·Â | 1 ¹ø ¿ÜºÎ ´Ù´Ü°ª ¼³Á¤ | 0.1 - 100% | 33 | ||
| 5 | 2n | mode-2¹ø ¿îÀü°ª ÀÔ·Â | 2 ¹ø ¿ÜºÎ ´Ù´Ü°ª ¼³Á¤ | 0.1 - 100% | 36 | ||
| 6 | 3n | mode-3¹ø ¿îÀü°ª ÀÔ·Â | 3 ¹ø ¿ÜºÎ ´Ù´Ü°ª ¼³Á¤ | 0.1 - 100% | 40 | ||
| 7 | 4n | mode-4¹ø ¿îÀü°ª ÀÔ·Â | 4 ¹ø ¿ÜºÎ ´Ù´Ü°ª ¼³Á¤ | 0.1 - 100% | 45 | ||
| 8 | 5n | mode-5¹ø ¿îÀü°ª ÀÔ·Â | 5 ¹ø ¿ÜºÎ ´Ù´Ü°ª ¼³Á¤ | 0.1 - 100% | 50 | ||
| 9 | u1 | Å»ÀÚ ¿îÀü½Ã Å»ÀÚ º¸Á¤ °ªÀÇ ¼³Á¤(½Ã°£) ** ¼³Á¤ ±âÁØ °ªÀº ¸¶±×³×Æ® ¿îÀü ÃÖ´ë°ªÀÇ ¼³Á¤ ±âÁØÇÏ¿¡¼ Á¤ÇØÁø´Ù. ** ![]() |
½Ã°£¼³Á¤ (³ëÄ¡°ªÀÌ Å«°Í¿¡¼ ³ª¸ÓÁö °ª) |
0.1 - 100% | 0 | ||
| 10 | u2 | 0.1 - 100% | 0 | ||||
| 11 | u3 | 0.1 - 100% | 0 | ||||
| 12 | u4 | 0.1 - 100% | 0 | ||||
| 13 | OC | °úÀü·ù Á¦ÇѰª ÀÔ·Â | °úÀü·ù Á¦ÇѰª ¼³Á¤ | 0~200 | 110 | ||
| 14 | L- | Àü·ù Á¦ÇѰª ¼³Á¤ | Àü·ù Á¦ÇѰª ¼³Á¤ | 0~201 | 110 | ||
| 15 | P1 | RUN ½Ã ÀÏÁ¤½Ã°£À» ³ôÀº °ªÀ¸·Î ¿îÀü(ÀÔ·ÂµÈ ½Ã°£¸¸Å) ½Ã°£ ¼³Á¤ |
HI °ªÀÇ ½Ã°£ ¼³Á¤ | 0.1 - 100% | 0.3 | ||
| 16 | P2 | RUN ½Ã ÀÏÁ¤½Ã°£À» ³ôÀº °ªÀ¸·Î ¿îÀü(ÀÔ·ÂµÈ ½Ã°£¸¸Å) ¿îÀü°ª ¼³Á¤ |
HI °ªÀÇ ¿îÀü°ª ¼³Á¤ | 0.1 - 100% | 0.3 | ||
| 17 | 6n | mode-6 ¹ø ¿îÀü°ª ÀÔ·Â | 6 ¹ø ¿ÜºÎ ´Ù´Ü°ª ¼³Á¤ | 0.1 - 100% | 50 | ||
| 18 | nn | ¿ÜºÎ º¼·ýÀ» ºÎÂøÇØ »ç¿ë ÇÒ °æ¿ì ÃÖ´ë Çã¿ë°ª ÀÔ·Â ¼³Á¤ |
MAX (VR ÃÖ´ë°ª¼³Á¤) |
0.1 - 21% | 10.0 | ||
| 19 | bp | ÂøÀÚ Á¤Áö½Ã ¾ÈÁ¤°ª ¼³Á¤ | ÂøÀÚ ¾ÈÁ¤°ª ¼³Á¤ | 0.1 - 100% | 31 | ||
| 20 | E1 | Å»ÀÚ ¿îÀü ½Ã°£ ¼³Á¤ | Å»ÀÚ ¿îÀü½Ã°£ ¼³Á¤ | 0.1 - 100% | 22 | ||
| 21 | uu | Mode-6 ¹ø VR ¿îÀü½Ã ÀÔ·Â Àü¾Ð°ª ÀÔ·Â | 0 - ´Ü¼ö(Mode-6) 2 - VR ¿îÀü½Ã_220V 4 - VR ¿îÀü½Ã_220V 22 - ´Ü¼ö_220V |
0 2 4 22 |
0 | ||


